粉尘产生的场合

皮带机系统粉尘的来源

源头治理+粉尘抑制
源头治理
应用DEM仿真技术,采用流线形设计落料管,合理控制料流形态、流速、流动轨迹,实现减少冲击,降低诱导风、减少二次扬尘,降低落料管磨损,避免堵管等问题。





粉尘抑制
指采取各种防尘措施,减少生产环境中的粉尘,使其浓度符合规定的卫生标准。改革生产工艺和设备,使生产中尽可能少地产生粉尘,尽可能少地使用含游离二氧化硅的原料。
(1)改革生产工艺和设备,使生产中尽可能少地产生粉尘,尽可能少地使用含游离二氧化硅的原料;
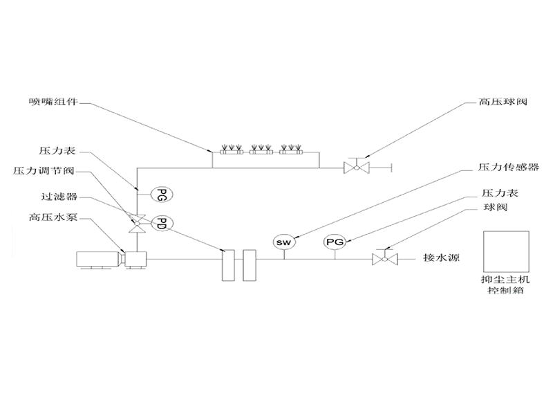
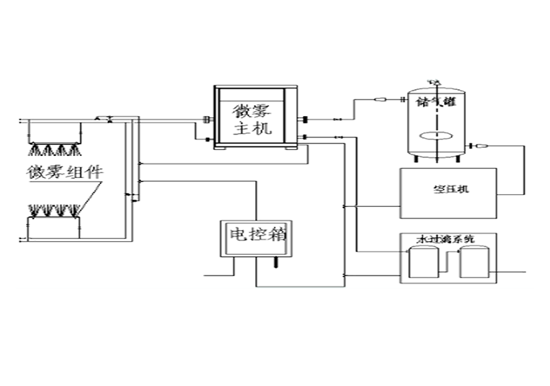
(2)采用湿式作业,如在作业环境用喷雾洒水降尘,采用水磨、水碾、水筛、水力清沙的方法来防止粉尘飞扬,采矿时采用湿式凿岩、喷雾、装岩洒水和冲洗岩帮等;
(3)对不能采用湿式作业的生产过程可对产生粉尘的机器进行密封抽尘或局部吸尘,抽出的含粉尘空气应经过净化除尘后向大气排放;




微雾抑尘与传统转运站除尘器对比优势
1、在污染的源头对起尘点进行粉尘处理;
2、抑尘效率高,针对10μm以下的可吸入粉尘治理效果达到96%以上,避免矽肺病危害;
3、水雾颗粒细腻,对物料湿度增重比为0.02%~0.05%,基本可忽略不计。在抑尘点形成浓密的雾池,对物料(煤)无热值损失;
4、占地面积小、耗能小(耗电是传统布袋除尘的20%,耗水是传统喷淋除尘的20%);
5、耗水量小、无二次污染;
6、设备投入小、运行、维护费用低;
7、可使用于无组织排放、密闭或半密闭空间的污染源;
8、夏季使用,对车间温度有降温效果。
上海坤冶微雾抑尘的特点
●充分考虑环境因素,不同工况场合优选抑尘系统
●对不同物料料性测试,准确预测散料转运过程产生的粉尘量
●通过DEM-CFD的耦合仿真,优选抑尘布置方案,抑尘
●能耗低、二次污染小
●机电一体化设计,控制系统更贴合系统运行工艺



